Hills Avenue
" CDC Studio came up with a design that exceeded our expectations. I thought there weren't too many options for the work to our house and that I could predict what would be proposed (for two other architects we approached this was the case), but CDC Studio came up with a scheme that maximised the use of our plot, meeting and exceeding what we had hoped for from the house, and all with a stunning design. "
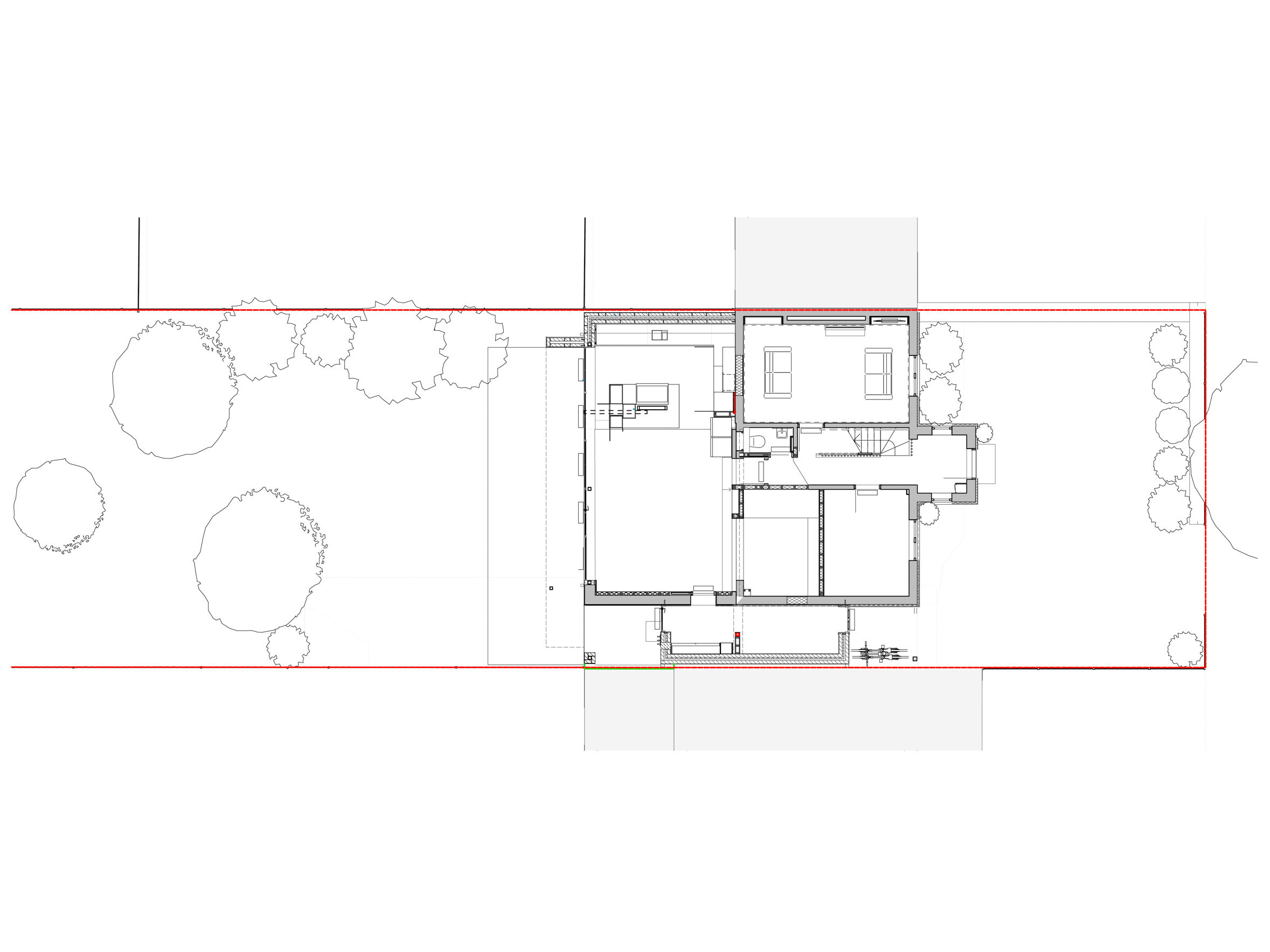
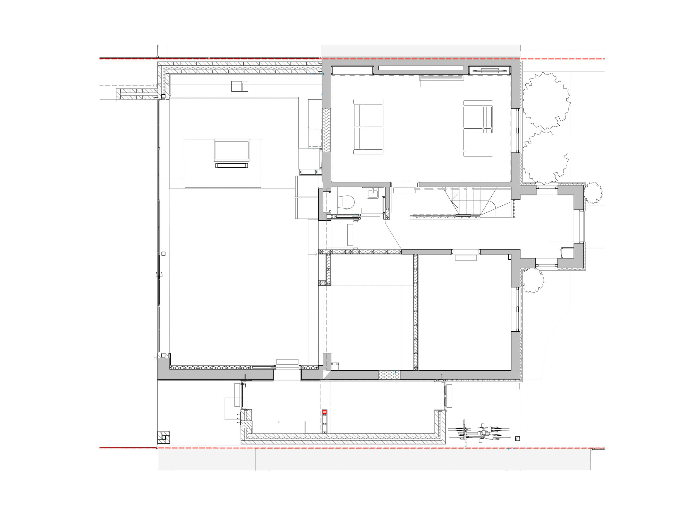
CDC Studio were approached in 2016 to renovate and reimagine a semidetached 4 bed property located on the south east of Cambridge city centre. Dissatisfied with the quality of the internal spaces, the clients wanted the property to be revitalised and restructured to provide them with a better family focused home.
The existing form and layout of the house constrained the amount of family space available to the owners and did not provide them the types of places and spaces they needed. The existing layout lacked a focused family room and had a poor connection between the internal spaces and the garden. The renovation improves this by extending the rear of the property, creating a large family room that connects out to a large garden terrace.
A deliberate emphasis upon material richness and detail is expressed in the architectural interior finishes. Bespoke finishes create moments of delight and interest throughout the home. The ground floor has been restructured to improve the internal layout and functioning of the family spaces. Skylights and expansive glazing to the rear garden flood the new family room with light, creating a family hub that can opened up fully to the outside.
A high level is of finish is achieved throughout the dwelling, elevating the experiential quality each renovated space provides. A common approach to the interior design throughout the property creates a unifying identity to the home and knits together the spaces into a whole.
-
Client
Private -
Location
Cambridge -
Budget
Private -
Design Team
-
Team
Delphine Dryer, Alicia Pell -
Images
CDC Studio
Richard Chivers