Rural Suffolk Community Centre
“The Vision for the local centre is very much of creating a destination which is viable and vital to serve the needs of both the new residents and the wider residents...the community centre should facilitate trust and respect between residents, council and support organisations.”
Brief:
The project formed a submission for an invited competition to develop new community facilities for the Great Wilsey Park housing development in Haverhill, Suffolk. The design brief required the masterplanning of a new local district centre and the architectural design of new community facilities; including a 73 place nursery, community building with spacious hall, and a community cafe.
The proposed local distinct centre masterplan was also required to include space for a healthcare centre, business office provision, and some residential units. An emphasis upon a landscape led approach and the creation of a social hub for the new neighbourhood was central to the brief.
CDC Studio’s Approach
Fundamental to the success of any project is developing a deep understanding of the clients aspirations and requirements. Creating spaces that achieve the clients vision is fundamental to maximising the value of a building. Within this project CDC Studio undertook a comprehensive analysis of the clients brief and supporting planning information. From this information key principles and requirements were identified.
Central to CDC Studio’s design approach was an emphasis upon community and landscape, and how the community facilities relate to both. These themes were at the core of our response and drove the design development.
Site Description
The site sits within the wider Great Wilsey Park housing development masterplan. The site is located on the edge of Haverhill, Suffolk, and is set within a semi-rural context. Prominent landscape features of water-ways, hedgerows and tree-belts define the character of the site. This rural character is reinforced through the housing development masterplan that establishes a series of green arteries and a central linear park.
Site Analysis
A key priority emphasised in the clients brief was a focus upon landscape and the natural environment. In response to this we conducted a detailed site analysis to identify the defining character of the surrounding landscape. This analysis highlighted the strong relationship between green corridors and movement.
As illustrated in the diagrams opposite, the sites local context is characterised by linear landscape features, such as streams, hedgerows, ditches and tree-belts, that create a network of green corridors across the surrounding area. These linear features provide channels along which a network of footpaths and movement flow throughout the wider housing development masterplan.
Site Strategies
Responding to the client’s vision for a community focused building at the heart of the neighbourhood, CDC Studio’s approach to the project aimed to tie the site into the wider structure and character of the area.
CDC Studio developed several key site strategies that aimed to extend the green spine into the site, integrating it into the wider network of foot paths, streams and hedgerows.
An analysis of pedestrian movement and topography illustrated that the site sits in an easily accessible, visually prominent location. It is predicted that most visitors to the community buildings from the neighbourhood will approach on foot or bicycle from the green spine parkland. Tying the community facilities into these communal green spaces is fundamental to the building’s success as a community hub.
CDC Studio developed three design options that explored the clients aspirations and values in three distinct typologies and approaches. Each design option emphasises varying aspects of the clients brief and employs a distinct architectural language to create different characters of space and community facilities. This exploration of different languages and approaches was also incorporated into the landscape design and wider site masterplan for each option.
Concept: Meeting on the Village Green
This concept responds directly to the network of green corridors and footpaths that cross the wider area, incorporating a similar emphasis upon landscape and movement. The concept aims to act as a funnel for community activity and movement. The community facilities are formed as two ribbons of accommodation that shape the landscape and pedestrian footpaths into a central meeting point and community heart. The design is to act as a focal point for community activity, with the funnel of landscape drawing residents into a new village green that flows towards the new cafe and community ‘Living Room’.
Addressing the buildings position in the site, the distinct pitched form of the community hall projects out into the neighbourhoods green spine parkway to create a local landmark and wayfinding point. The position of the hall will ensure that it is visible from a large proportion of the residential development.
Concept: A Beacon in Courtyards
This concept emphasises the role of the community centre as a hub and beacon for communal activity. Using a more formal architectural language, the concept centres the cafe within the design making it into a prominent landmark and destination. An expressive roof-form, derived from the forms of historic malt kilns that are typical to the Suffolk area, covers the central cafe area and projects above the surrounding roof-scape. The other community facilities and nursery cluster around the central cafe space to create a shared courtyard. These shared facilities front onto the courtyard to create a buzzing hub of community life.
The landscape design and wider site masterplan continue this language of courtyards and communal gathering spaces. Accommodation is arranged in courtyards, centred around communal kitchen gardens and orchards.
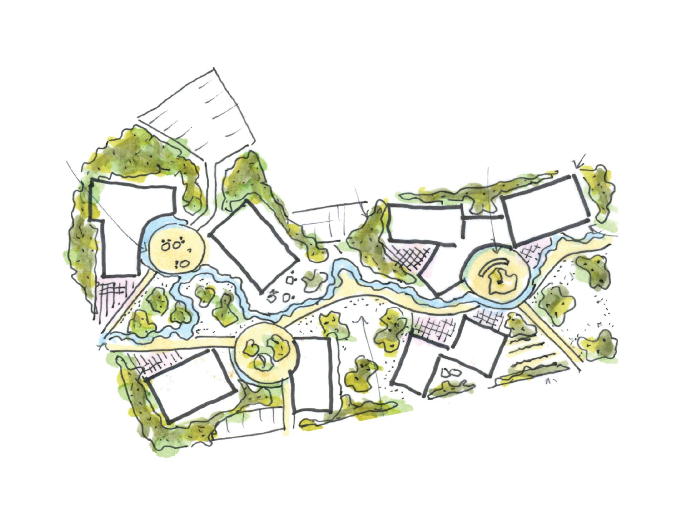
Concept: Pavilions in a Landscape
This concept responds strongly to the rural character of the site and incorporates landscape character into the heart of the scheme. Envisioned as pavilions nestled within a landscape of meadows, tree clearings, and meandering streams, the buildings form integrates and wraps around the meandering natural landscaping. The community facilities are arranged in clusters around breaks in the woodland. These glades, or ‘lily pads’ form natural meeting points and community spaces for residents to gather and socialise.
The landscape design and wider site masterplan strengthen this landscape focused design. A meandering wild landscape is proposed that creates a playful informal natural environment for residents.
The importance of landscape has been at the heart of the design development. Three individual landscape designs were developed to create a rich, characterful setting for the community facilities that integrates them into the rural context and wider neighbourhood.
-
Client
Private -
Location
Suffolk -
Budget
Private -
Design Team
Farrer Huxley
Northmores
Smith + Wallwork
Oxbury
Bidwells -
Team
Robin Dryer, Delphine Dryer, Elliot Shaw, Molly Blackwell, Shane Collins, Ciara Fitzpatrick, Joseph Smith -
Images
CDC Studio
Farrer Huxley -