Green Streets
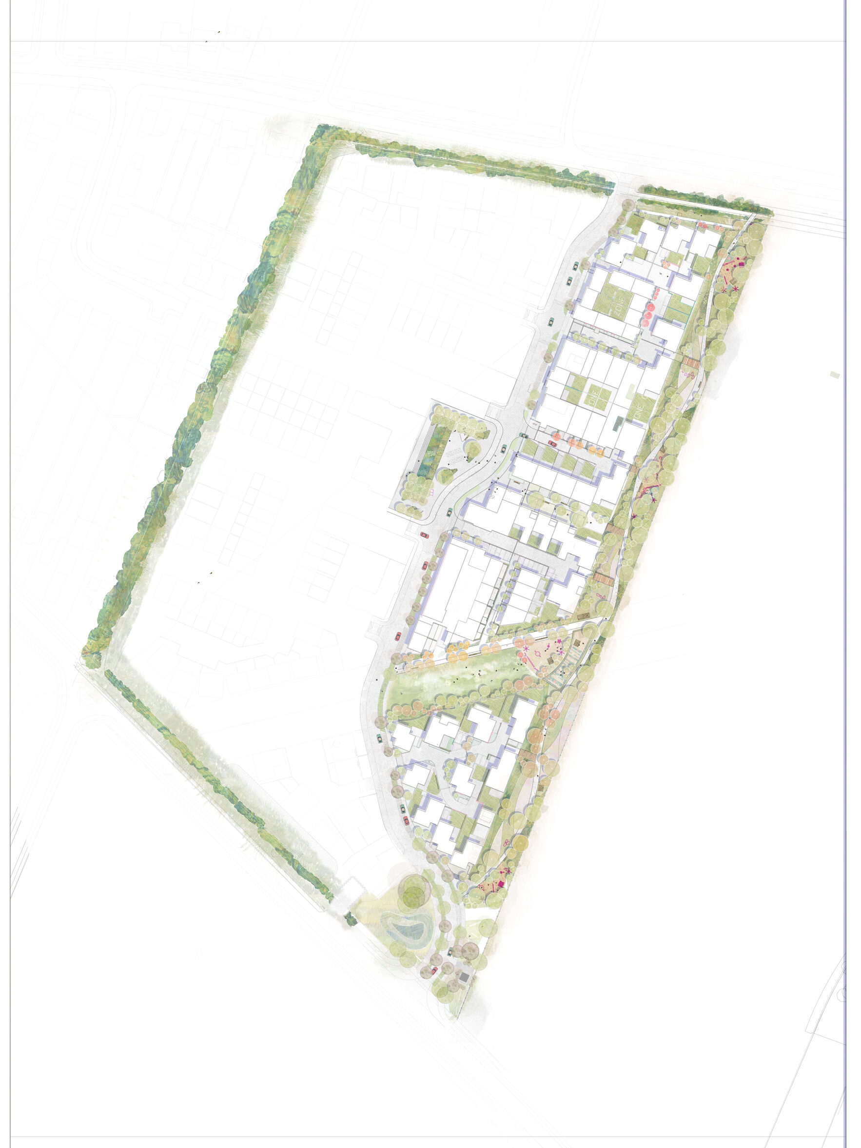
Developed as part of the Eddeva Park Masterplan, the Courtyard House concept aims to balance dense urban housing with providing secluded green amenity space and expansive views out over the landscape. The architectural design creates an outward facing perimeter of housing, animating and enlivening the surrounding streets. Within this perimeter pockets of gardens, courtyards, and roof terraces are formed, providing a private green oasis for each house. Roof level amenity spaces and carefully designed window openings ensure that each dwelling has uninterrupted views out into the open country side.
The Courtyard House typology concept was designed within a larger composition of urban block and character area. The form and elevation design of each Courtyard House relates to its neighbors and position with the wider landscape. The overall massing of the urban block steps down in height, scale and grain towards the green, wild edge of the site. This creates an architectural transition from the urban center of the site, to its rural edges. This stepping in height also insures that houses deep within the site maintain clear views out into the countryside.
-
Client
This Land -
Location
Cambridge -
Budget
Private -
Design Team
Farrer Huxley
Michael Hadi Associates
Brookbanks
Cundall
Oxbury
Mace
BPTW
Max Fordham -
Team
Robin Dryer, Mark Clarke, Delphine Dryer, Elliot Shaw, James Howells, Ting Khu, Ciara Fitzpatrick, Ana Pratas -
Images
Farrah Huxley
CDC Studio
Haze Visualisations